253/836
4 pièces - VAL D'ISERE VILLAGE - appartement 411 (VIVVS411)
- 2 étoiles
Bons plans
- AVANTAGE Client :
- Forfait de ski à tarif réduit possible en fonction des dates choisies
- 20% de réduction au Centre Aquasportif (SPA, massages, soins corps et visage...)
- Tarif préférentiel Location Matériel Ski/Snowboard
En bref
- Nombre de pièces :
- 4 pièces
- Zone Géographique :
- Situé dans le centre
- Superficie :
- 55 m²
- Exposition :
- Sud
- Étage :
- 4ème étage
- Nombre de personne maxi :
- 6 personnes
- Classement :
- 2 étoiles
Présentation
Idéalement situé dans le centre, skis au pieds. Il bénéficie d'une exposition sud et dispose d'une place de parking.
APPARTEMENT EN LOCATION DU SAMEDI AU SAMEDI
Heure d'arrivée : 17h
Heure de départ : 10h
Quartier de prédilection de Chalet Time où sont implantés nos bureaux, Val Village est composé de 3 résidences réalisées dans l'esprit architectural du vieux Val d'Isère. Accès direct aux pistes et aux commerces situés au pied de la résidence.
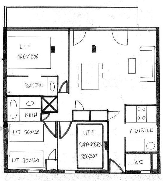
L’appartement VVS411 peut accueillir 6 personnes. Il se trouve au 4ème étage de l’entrée Saturne. Il est exposé Sud et offre une superbe vue sur l’arrivée des pistes. Il comprend 3 chambres, 2 salles de bains et une place de parking. L’appartement a été totalement rénové en été 2011.
- Séjour : TV écran plat
- Cuisine : four multi - fonctions, plaques à induction, lave vaisselle, lave linge séchant, machine Nespresso
- Chambre 1 : lit double (160 x 200)
- Salle de bain 1 : douche, lavabo
- Chambre 2 : 2 lits simples (90 x 190) (possibilité de faire un lit double)
- Chambre cabine 3 : 1 ensemble de 2 lits superposés (80 x 200)
- Salle de bain 2 : baignoire, lavabo
- WC
- Place de parking couvert (hauteur : 1m95). Parking du Val d’Isère Village, situé à 50m de l’appartement
- Casier à skis
- Balcon exposé
Inclus dans le prix :
- Linge de lit (lits faits avant votre arrivée)
- Linge de toilette (changement en milieu de séjour)
- Peignoirs
- Internet WIFI
- Ménage : Ménage de fin de séjour (hors cuisine)* et ménage de milieu de séjour
*L'appartement doit être rendu dans un état acceptable. En cas d'abus constatés, un supplément ménage pourra être appliqué.
La taxe de séjour, au profit de la commune de Val d'Isère qui est due en fonction du nombre d'adultes de plus de 18 ans.
- Animaux interdits
- Appartement non fumeur
Heure d'arrivée : 17h
Heure de départ : 10h
Quartier de prédilection de Chalet Time où sont implantés nos bureaux, Val Village est composé de 3 résidences réalisées dans l'esprit architectural du vieux Val d'Isère. Accès direct aux pistes et aux commerces situés au pied de la résidence.
L’appartement VVS411 peut accueillir 6 personnes. Il se trouve au 4ème étage de l’entrée Saturne. Il est exposé Sud et offre une superbe vue sur l’arrivée des pistes. Il comprend 3 chambres, 2 salles de bains et une place de parking. L’appartement a été totalement rénové en été 2011.
- Séjour : TV écran plat
- Cuisine : four multi - fonctions, plaques à induction, lave vaisselle, lave linge séchant, machine Nespresso
- Chambre 1 : lit double (160 x 200)
- Salle de bain 1 : douche, lavabo
- Chambre 2 : 2 lits simples (90 x 190) (possibilité de faire un lit double)
- Chambre cabine 3 : 1 ensemble de 2 lits superposés (80 x 200)
- Salle de bain 2 : baignoire, lavabo
- WC
- Place de parking couvert (hauteur : 1m95). Parking du Val d’Isère Village, situé à 50m de l’appartement
- Casier à skis
- Balcon exposé
Inclus dans le prix :
- Linge de lit (lits faits avant votre arrivée)
- Linge de toilette (changement en milieu de séjour)
- Peignoirs
- Internet WIFI
- Ménage : Ménage de fin de séjour (hors cuisine)* et ménage de milieu de séjour
*L'appartement doit être rendu dans un état acceptable. En cas d'abus constatés, un supplément ménage pourra être appliqué.
La taxe de séjour, au profit de la commune de Val d'Isère qui est due en fonction du nombre d'adultes de plus de 18 ans.
- Animaux interdits
- Appartement non fumeur
Équipements & Services
- Parking / Garage :
- Parking Intérieur privé
À noter
- Ref. municipale 73304000830L9
Accessibilité
- Ascenseur :
- Oui
Disponibilités
Destination
Val d'Isère Village
73150
VAL-D'ISÈRE
Coordonnées GPS
Latitude : 45.447933
Longitude : 6.979829
- Zone Géographique :
- Situé dans le centre
- Distance :
- 0.01 km du coeur du village
- 0.05 km des pistes
- 0.1 km du rassemblement Ecole de Ski
- 0.01 km des commerces
- 33 km de la gare SNCF Bourg St Maurice
- 0.4 km de la gare routière
253/836


































