695/822
3 pièces / 3 pièces cabine - CHOUCAS (CHOUCAS12)
- 4 étoiles
Bons plans
- AVANTAGE Client :
- Forfait de ski à tarif réduit possible en fonction des dates choisies
- 20% de réduction au Centre Aquasportif (SPA, massages, soins corps et visage...)
- Tarif préférentiel Location Matériel Ski/Snowboard
En bref
- Nombre de pièces :
- 3 pièces
- Zone Géographique :
- Situé dans le centre
- Type hébergement :
- Appartement dans Résidence
- Appartement dans résidence
- Superficie :
- 70 m²
- Exposition :
- Sud
- Étage :
- 1er étage
- Nombre de personne maxi :
- 6 personnes
- Classement :
- 4 étoiles
Présentation
Magnifique appartement dans le centre, balcon-terrasse exposé sud.
Appartement d'une capacité confort de 6 personnes.
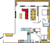
DESCRIPTIF HEBERGEMENT:
Composé de 1 séjour, 2 chambres, 1 coin montagne et 1 cuisine ouverte pour une superficie totale de 67 m².
Situé au 1er étage avec ascenseur. Balcon-terrasse exposé Sud. Vue sur village et montagnes. Non fumeur.
Cet appartement n'est pas accessible aux personnes à mobilité réduite.
COUCHAGES:
Chambre N°1: 2 lits simples jumelables avec salle d’eau et WC.
Chambre N°2: 1 lit double avec salle de bain.
Coin montagne: 2 lits superposés.
SANITAIRES:
1 salle de bain. 1 salle d’eau avec WC. 1 WC séparé.
CUISINE:
Type ouverte avec plaques vitrocéramiques, 1 four électrique, 1 four micro-ondes, 1 lave-vaisselle, 1 réfrigérateur, 1 lave-linge.
EQUIPEMENTS COMPLEMENTAIRES:
WIFI, télévision chaînes françaises. 1 place parking couvert incluse, hauteur limitée à 2.00m.
DIVERS:
Casier à ski. Les animaux ne sont pas admis.
OPTIONS DISPONIBLES SUR DEMANDE:
Ménage de sortie. Linge de literie et serviettes. Forfaits de ski. Location de ski. Transfert ou taxi. Parking.
Numéro d'enregistrement municipal :73304000778MU
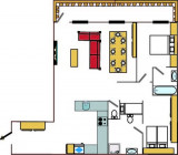
DESCRIPTIF HEBERGEMENT:
Composé de 1 séjour, 2 chambres, 1 coin montagne et 1 cuisine ouverte pour une superficie totale de 67 m².
Situé au 1er étage avec ascenseur. Balcon-terrasse exposé Sud. Vue sur village et montagnes. Non fumeur.
Cet appartement n'est pas accessible aux personnes à mobilité réduite.
COUCHAGES:
Chambre N°1: 2 lits simples jumelables avec salle d’eau et WC.
Chambre N°2: 1 lit double avec salle de bain.
Coin montagne: 2 lits superposés.
SANITAIRES:
1 salle de bain. 1 salle d’eau avec WC. 1 WC séparé.
CUISINE:
Type ouverte avec plaques vitrocéramiques, 1 four électrique, 1 four micro-ondes, 1 lave-vaisselle, 1 réfrigérateur, 1 lave-linge.
EQUIPEMENTS COMPLEMENTAIRES:
WIFI, télévision chaînes françaises. 1 place parking couvert incluse, hauteur limitée à 2.00m.
DIVERS:
Casier à ski. Les animaux ne sont pas admis.
OPTIONS DISPONIBLES SUR DEMANDE:
Ménage de sortie. Linge de literie et serviettes. Forfaits de ski. Location de ski. Transfert ou taxi. Parking.
Numéro d'enregistrement municipal :73304000778MU
Équipements & Services
- Linge et Ménage :
- Ménage de fin de séjour non inclus
- Parking / Garage :
- Parking Intérieur privé
À noter
- Ref. municipale 73304000778MU
Accessibilité
- Ascenseur :
- Oui
Disponibilités
Destination
Avenue Olympique
73150
VAL-D'ISÈRE
Coordonnées GPS
Latitude : 45.450435
Longitude : 6.978246
- Zone Géographique :
- Situé dans le centre
- Distance :
- 0.1 km du coeur du village
- 0.5 km des pistes
- 0.4 km du rassemblement Ecole de Ski
- 0.1 km des commerces
- 35 km de la gare SNCF Bourg St Maurice
- 0.1 km de la gare routière
Avis
Note :
(1 avis)
3
/ 5
Février 2022
Jean
Entre amis
55 à 64 ans
Note :
3
/ 5
Les deux chambres étaient très petites et une des chambres n'avait pas de fenêtre.
Conformité du descriptif
Propreté de l'hébergement
Equipements de l'hébergement
Confort de la literie
Situation géographique
Avis écrit le 19/02/2022
Avis par type de profil
695/822




























